Uygar Yaşam Kaş Villas

Employer:

Location:

ÇAYKÖT KALKAN , ANTALYA

In Kaş Kalkan Çayköy, Boutique Villas Luxurious and Intertwined with Nature

In Kaş Kalkan Çayköy, one of the favorite tourism destinations of Antalya, an exclusive life limited to only 4 specially designed boutique villas awaits you in a location that stands out with its unique nature view and calm atmosphere.

The villas, each of which is planned as 4+1, are designed to provide the highest level of comfort with high-standard equipment such as private swimming pool, large landscaped garden, sauna, jacuzzi, VRF air conditioning system and underfloor heating infrastructure.

In this project, where modern architectural lines and nature are intertwined, each villa has a detached usage area and maximizes the sense of privacy and freedom.


In Çayköy, where Kalkan's tranquility and luxury are combined, a life neighboring nature and close to comfort can now be yours.


Sauna

Generator

Underfloor Heating

VRF Air Conditioning System

Jacuzzi

Pool

Solar Panel

Open Parking Lot

1500

CONSTRUCTION AREA

2024

COMPLETION DATE


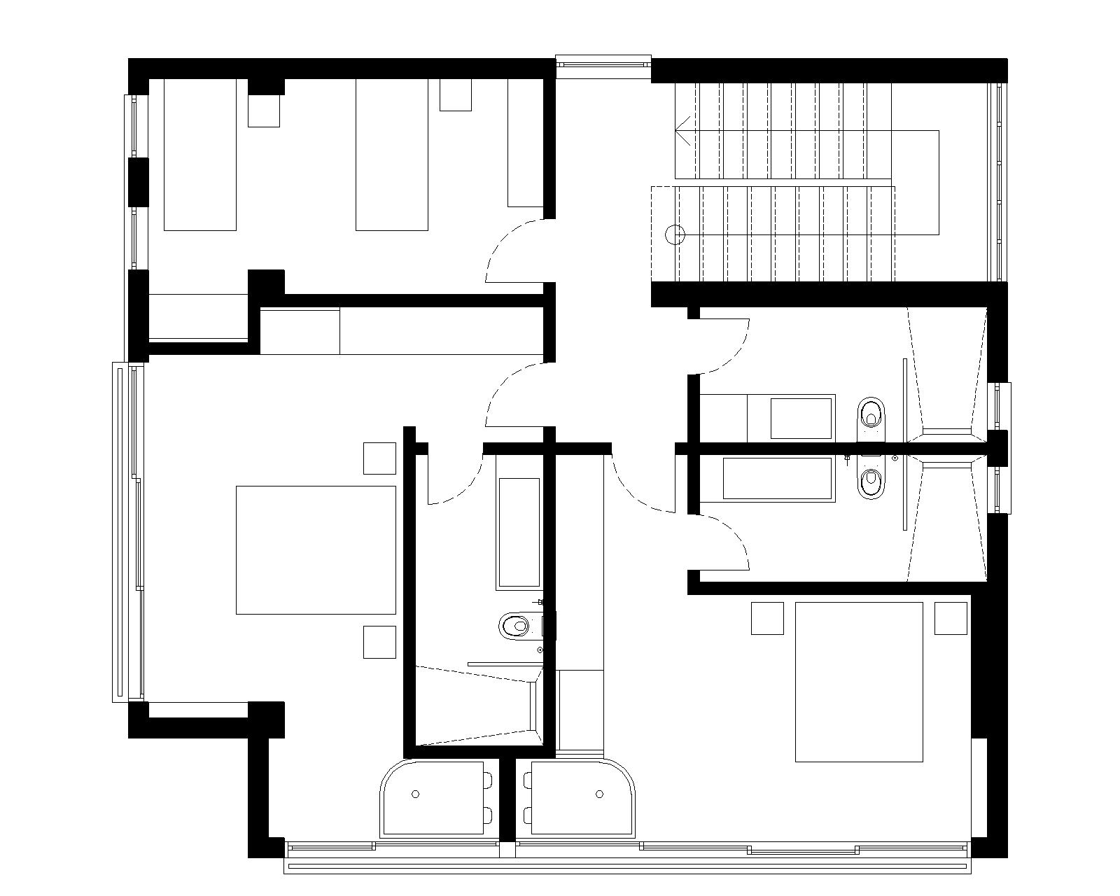
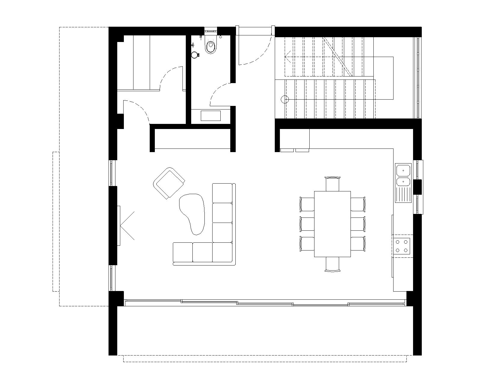
Floor Plans

Let us call you

Contact Us

Uygar Yaşam Kaş Villas

Uygar Yaşam Kaş Villas